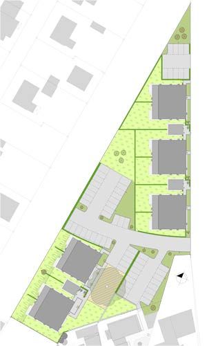
Wohnsiedlung in Ronnenberg

Neubau von fünf vollunterkellerten Mehrfamilienhäusern mit jeweils sechs Wohneinheiten. Zu jeder Wohneinheit gehört entweder eine Terrasse mit Gartenanteil, ein Balkon oder eine Dachterrasse. Die Gestaltung der Außenanlagen beinhaltet Freiflächen, Parkplätze sowie Fahrradunterstellplätze. Die Fertigstellung erfolgte im Jahr 2019.

    Wortmann Architekten

    Kontakt

    Hauptstr. 40
    48249 Dülmen-Rorup
    Tel 02548-201
    Fax 02548-1400
    Diese E-Mail-Adresse ist vor Spambots geschützt! Zur Anzeige muss JavaScript eingeschaltet sein!